Lokale

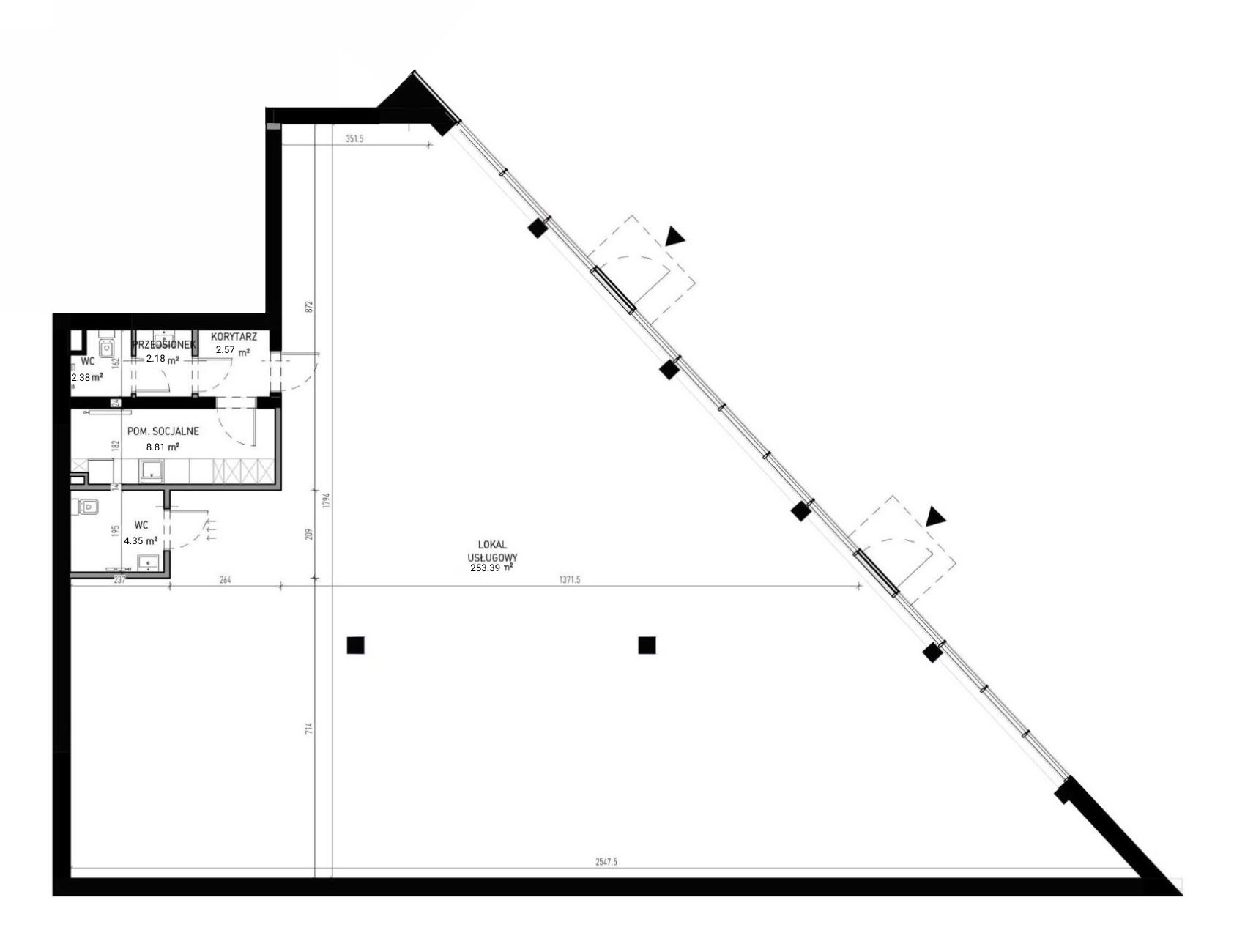
Lokal B/U/0/02

Budynek B - Parter

Cena: 2 821 294 zł

10300 zł/m2


Powierzchnia: 273.86 m2


Lokal usługowy: 253.39 m2

Pom. socjalne: 8.81 m2

Przedsionek: 2.18 m2

Toaleta: 2.38 m2

Toaleta: 4.35 m2

Korytarz: 2.75 m2


Karta lokalu

Karta katalogowa ma charakter informacyjny i nie stanowi oferty zgodnie z przepisami kodeksu cywilnego. Wymiary podane na podstawie projektu budowlanego. Mogą występować nieznacznie różnice wynikające z projektu wykonawczego. Wymiary ścian konstrukcyjnych podane w świetle ścian tynkowanych. Wymiary wszystkich ścian podane bez wykończenia (np. glazura). Powierzchnia mieszkania obliczana jest wg normy ISO PN 9836-1997.